- Domů
- Krbové vložky
- Krbové vložky bez výměníku
- UNIFLAM krbová vložka 760 EVO levé prosklení s klapkou 260-173-GS
UNIFLAM krbová vložka 760 EVO levé prosklení s klapkou 260-173-GS
UNIFLAM krbová vložka 760 EVO levé prosklení s klapkou 260-173-GS
Krbová vložka 760 EVO levé prosklení s klapkou 260-173-GS?
Krbové vložky Uniflam Evo jsou vhodné do domů z rekuperační jednotkou. Vložky jsou upraveny tak, aby splňovali vše potřebné k použití právě do těchto budov. Krbová vložka umožňuje efektivní a úsporné vytápění domácnosti.
Kvalita krbové vložky Uniflam EVO
Krbové vložky Uniflam Evo jsou vyrobeny z vysoce kvalitních materiálů – oceli, litiny. Spalovací komoru lemuje šamotová vyzdívka. Speciální systém výměníku a deflektory poskytují vysokou spolehlivost a účinnost krbové vložky. Stojan ke krbové vložce zaručuje velkou stabilitu s možností nastavení výšky.
Přívod vzduchu
Krbová vložka Uniflam EVO je vybavena přívodem externího přívodu vzduchu (přívod vzduchu zvenčí). Průměr přívodu vzduchu je 125 mm a je umístěn pod topeništěm. Množství vzduchu přiváděného do topeniště se nastavuje pomocí regulační páčky umístěné ve spodní části rámu. Vzduch je přiváděn přímo do spalovací komory plus na sklo, kde vytváří clonu, díky které nebude docházet k nadměrnému znečištění skla.
Jednoduchá obsluha
Krbová vložka je vybavena velkým popelníkem, litinovým roštem a efektivním systémem prouděním vzduchu na sklo, aby provoz a údržba byli jednoduché a nezabrali mnoho času.
Celkový pohled na krbovou vložku Uniflam EVO
Jedná se o moderní a kvalitní krbovou vložku s velkým prosklením. Sklo je počerněné a poskytuje ideální pohled do ohně. Madlo kliky a k ovládání přívodu vzduchu, je vyrobeno z nerezové oceli a spolu s krbovou vložkou jako celek vytváří moderní design krbových vložek Uniflam EVO.
| Způsob vytápění | teplovzdušný |
|---|---|
| Jmenovitý výkon | 10 kW |
| Kouřovod | 200 mm |
| Váha | 240 kg |
| Akumulační materiál | šamot Rath |
| Deflektor (clona) | Ano |
| Délka polen | 45 cm |
| Emise CO (Při 13% O2) | 0,1 % |
| Prosklení | rohové - levé |
| Typ skla | rovné |
| Odvod spalin | vrchní |
| Materiál | litina |
| Externí přívod vzduchu | Ano |
| Sekundární spalování | Ano |
| Norma | EN 16510-2-1, Ekodesign |
| Oplach skla | Ano |
| Palivo | dřevo, dřevěné brikety |
| Popelník | Ano |
| Přikládání | přední |
| Provozní tah | 12 Pa |
| Průměr externího přívodu vzduchu | 125mm mm |
| Průměrná teplota spalin | 258 °C |
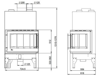
| Rozměr (ŠxVxH) | 724,5x1376x559 mm |
| Vytápěcí schopnost | - m3 |
| Účinnost | 78 % |
| Vyústění teplého vzduchu | 4 x 125 mm |
| Záruka | 60 měsíců |
| Účinnost (%) | 78 |
| Jmenovitý výkon (kW) | 09-12 |
Lidé si k tomuto produktu nejčastěji kupují


CARAMBA čistič krbových skel 500ml


HS Flamingo sklo pod kamna - Oblouk 700x450 mm / R350 / 6 mm


Smetáček ke krbu FLAMINGO - kovový


Čistič krbových skel - houba


Kraft&Dele vysavač na popel 20L KD489


Koš na dřevo FLAMINGO HS003


BURNER podpalovač - tuba 100 ks


Kraft&Dele separátor popela 20L KD479


HS Flamingo sklo pod kamna - Oblouk 1000x550 mm / 2xR200 / 6 mm


Krbové nářadí FLAMINGO HS001


Pohrabáč ke krbu FLAMINGO - plochý kovový
Související produkty


Kouřovod - koleno - stavitelné 90* 200mm/2mm


Kouřovod - koleno - stavitelné 45* 200mm/2mm


Kouřovod - trubka 200mm/2mm/25cm


Kouřovod - trubka 200mm/2mm/50cm


BERTRAMS zděř dvoustěnná 200mm


Kouřovod - zděř jednostěnná 200mm


Kouřovod - žebrovaná trubka 200mm/2mm 50cm


Kouřovod - spojka 200mm/2mm 25cm


Kouřovod - trubka 200mm/25cm/1,5mm


Kouřovod - trubka 200mm/50cm/1,5mm


Kouřovod - trubka 200mm/100cm/1,5mm


Kouřovod - koleno 90/200mm/1,5mm


Kouřovod - koleno 45/200mm/1,5mm


Kouřovod - koleno 90/200mm/1,5mm s čistícím otvorem


Kouřovod - růžice 200mm/0,5mm


Kouřovod - zděř 200mm/1,5mm


Kouřovod - přechodka 200mm/180mm/1,5mm - kamna/komín


Kouřovod - přechodka 200mm/160mm/1,5mm - kamna/komín


Kouřovod - přechodka 200mm/150mm/1,5mm - kamna/komín


Kouřovod - koleno 90*/200mm/1,5mm nastavitelné


Kouřovod - redukce do keramického komína s růžicí 200mm/150mm/1,5mm - komín/kamna


Kouřovod - přechodka 200/160mm/2mm - kamna/komín


AMETALTOP stříška kulatá 200 mm


AMETALTOP stříška hranatá 200 mm
Alternativní produkty


UNIFLAM krbová vložka 760 EVO pravé prosklení s klapkou 260-172-GS










Dnes Vám poradí Martin





